Арбатская пл, 1

Бизнес-центр класса A

О бизнес-центре

Бизнес-центр на Арбатской площади, д. 1 расположен в историческом и деловом центре Москвы, сочетая престижное расположение с современными офисными условиями. Комплекс оснащён современными инженерными системами, включая кондиционирование, вентиляцию и электроснабжение высокой мощности. Внутренние помещения выполнены в нейтральной деловой отделке, что позволяет арендаторам легко адаптировать пространство под корпоративный стиль.

Комплекс подходит для компаний различного масштаба — от небольших офисов для стартапов до крупных корпоративных блоков. Высокие потолки и панорамные окна создают светлое и просторное рабочее пространство. Гибкая планировка позволяет организовать кабинеты, open space, переговорные и зоны отдыха, обеспечивая комфортную и продуктивную рабочую среду для сотрудников и гостей.

Где находится бизнес-центр и как до него добраться?

  • Адрес: Москва, Арбатская пл., д. 1.

  • Пешая доступность до станции метро «Арбатская».

  • Удобный подъезд на автомобиле через Арбатскую площадь и соседние улицы.

  • Парковочные места для сотрудников и гостей вблизи комплекса.

  • Развитая инфраструктура района: рестораны, кафе, магазины, банки.

  • Удобная транспортная сеть, обеспечивающая быстрый доступ из разных районов города.

A класс
31000 общая площадь, кв. м
7 этажность здания
10 наземная парковка (м/м)

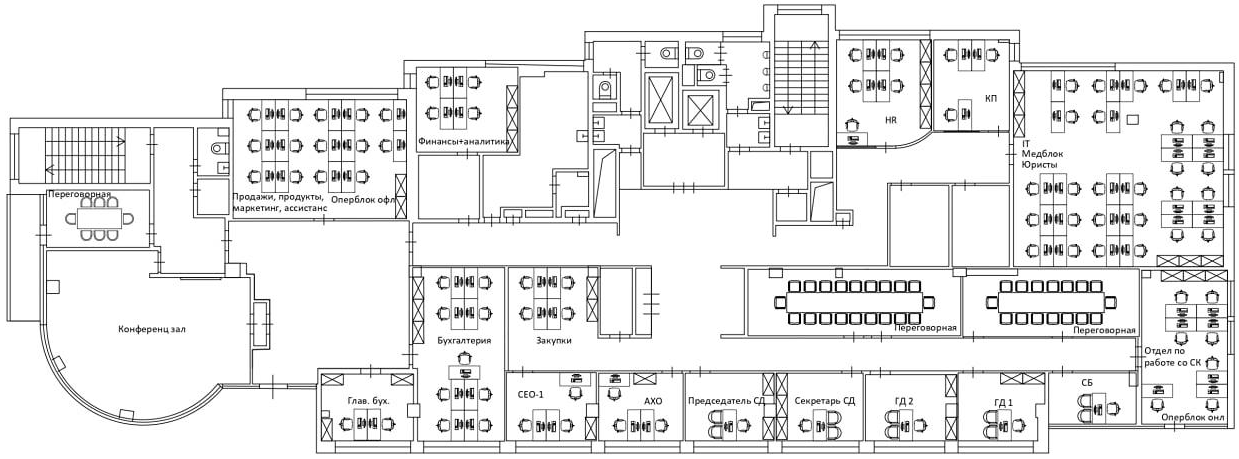
Бесплатная отрисовка планировочных решений с любым количеством правок

Планировка

Преимущества бизнес-центра по адресу Арбатская пл, 1

класс A
Офисы в аренду готовы к въезду
ТРАНСПОРТНАЯ ДОСТУПНОСТЬ
Находится в пешей доступности от станций метро «Александровский сад» и «Арбатская»
ПАНОРАМНЫЕ ВИДЫ
С верхних этажей бизнес-центра
НАЗЕМНАЯ И ПОДЗЕМНАЯ ПАРКОВКА
10 м/м
СООТНОШЕНИЕ ЦЕНА/КАЧЕСТВО
Одно из лучших предложений в округе
ХОРОШАЯ ЭКОЛОГИЯ
В окрестностях расположено несколько парков

Контакты

Адрес:
г. Москва, Арбатская пл, д 1
Телефон:
+7(499)113-71-32 — отдел аренды
Оставить заявку на просмотр
Отправляя свои данные, я соглашаюсь с Пользовательским соглашением и Политикой конфиденциальности


Какие характеристики и особенности имеет бизнес-центр?

БЦ на Арбатской площади, 1 состоит из нескольких этажей офисных помещений с разнообразной планировкой: кабинеты, open space и комбинированные блоки. Панорамные окна создают достаточное естественное освещение, а высокие потолки визуально увеличивают пространство. Современные инженерные системы обеспечивают стабильную работу оборудования и комфортный микроклимат, создавая удобные условия для работы сотрудников.

Класс бизнес-центра и его соответствие современным стандартам

  • Класс комплекса: B+.

  • Высокоскоростной интернет и телекоммуникационные сети.

  • Современные системы вентиляции и кондиционирования.

  • Противопожарная сигнализация, датчики и системы оповещения.

  • Соответствие стандартам современных офисных зданий.

  • Возможность подключения дополнительных инженерных решений по требованию арендатора.

Что входит в инфраструктуру бизнес центра

Комплекс оснащён всем необходимым для комфортной работы сотрудников и организации деловой среды. На территории и в шаговой доступности находятся кафе, столовые и зоны отдыха. Парковка обеспечена для сотрудников и гостей, а зоны общего пользования подходят для проведения переговоров и деловых встреч.

Как снять или купить площадь

  • Прямая аренда и продажа офисных помещений от собственника без посредников.

  • Свободные площади различного формата: небольшие блоки, средние офисы и целые этажи.

  • Возможность адаптации планировки под корпоративные нужды.

  • Стандартный пакет документов для аренды или покупки.

  • Гибкие условия аренды, сроков и эксплуатации помещений.

  • Поддержка арендаторов и оперативное решение вопросов эксплуатации комплекса.

Безопасность и системы контроля

БЦ оснащён современной системой безопасности. Круглосуточная охрана, видеонаблюдение и электронная система контроля доступа обеспечивают защиту арендаторов и их имущества. Противопожарные системы включают датчики, сигнализацию и системы оповещения.

Кто является собственником и основными арендаторами в бизнес-центре

  • Управление комплексом осуществляется собственником напрямую.

  • Арендаторы: компании из сфер IT, консалтинга, финансовых услуг. и малого бизнеса.

  • Возможность размещения малых и средних предприятий.

  • Разнообразие офисных блоков по площади и формату.

  • Высокий уровень востребованности комплекса за счёт центрального расположения и развитой инфраструктуры.

  • Поддержка арендаторов со стороны администрации комплекса.

Как выглядит бизнес-центр внутри и снаружи

Фасад здания выполнен в современном деловом стиле, гармонично вписываясь в историческую архитектуру района Арбат. Входная группа оборудована представительской зоной. Внутренние помещения светлые и просторные, с качественной отделкой и продуманной организацией рабочего пространства. Панорамные окна обеспечивают естественное освещение, инженерные системы поддерживают комфортный микроклимат. Из окон открываются виды на площадь и исторические улицы, создавая приятную рабочую атмосферу для сотрудников и гостей.

  • Современный фасад и аккуратный внешний вид.

  • Просторные и светлые офисные помещения.

  • Нейтральная отделка, готовность к въезду и адаптации под корпоративный стиль.

  • Панорамные окна и естественное освещение.

  • Вид на исторические улицы и площадь Арбат.